Área de identificação
Código de referência
Título
Data(s)
- Setembro de 1998 (Produção)
Nível de descrição
Dimensão e suporte
Projeto arquitetônico - 04 pranchas
O documento foi digitalizado
Área de contextualização
Nome do produtor
Nome do produtor
Entidade custodiadora
História do arquivo
Fonte imediata de aquisição ou transferência
Área de conteúdo e estrutura
Âmbito e conteúdo
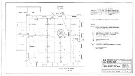
Tipologia: Projeto elétrico
Descrição: Projeto Elétrico do Arquivo Histórico Municipal João Spadari Adami
Prancha E 01: Planta baixa pavimento térreo
Prancha E 02: Planta baixa primeiro pavimento
Prancha E 03: Planta baixa segundo pavimento
Prancha E 04: Planta baixa terceiro pavimento
Projeto 149/1998
Local: Avenida Julio de Castilhos, 318 - Caxias do Sul - RS
Data aproximada: Setembro de 1998
Proprietário: Prefeitura Municipal de Caxias do Sul - RS
Responsável: SEPLAM - Secretaria de Planejamento Municipal
José Gabriel Gonçalves - Engenheiro Elétrico
Avaliação, seleção e eliminação
Incorporações
Sistema de arranjo
Área de condições de acesso e uso
Condições de acesso
Condiçoes de reprodução
Visando resguardar o interesse público e cumprir a legislação vigente sobre o direito autoral (Lei nº 9.610/98) e de acordo com a política nacional de arquivos públicos e privados (Lei nº 8.159/91), o usuário compromete-se a citar a autoria do documento reproduzido, bem como o nome da instituição que detém a guarda do original.
Em caso de citação de qualquer documento do acervo, o usuário compromete-se a realizar a indicação de fonte, autoria, local, data do documento e acervo.
É obrigatório manter a integridade da imagem do documento original. Estará sujeito à responsabilidade penal, civil e/ou administrativa aquele que utilizar os documentos reproduzidos de forma indevida.
É vedada a veiculação da imagem em sítios da internet e páginas de redes sociais.
Em caso de dúvida, entre em contato com a administração do Arquivo Histórico Municipal João Spadari Adami para solicitar esclarecimentos por meio do telefone: (54) 3901.1318 e do e-mail: arquivopublico@caxias.rs.gov.br
Idioma do material
Sistema de escrita do material
Notas ao idioma e script
Características físicas e requisitos técnicos
Suporte: Papel
Legibilidade: Boa
Conservação : cópias: bom estado e originais: amassado e rasgado
Cópia: 04 cópias heliográficas
