Área de identificação
Código de referência
Título
Data(s)
- Novembro de 1987 (Produção)
Nível de descrição
Dimensão e suporte
Projeto arquitetônico - 16 pranchas
O documento foi digitalizado
Área de contextualização
Nome do produtor
Nome do produtor
Entidade custodiadora
História do arquivo
Fonte imediata de aquisição ou transferência
Área de conteúdo e estrutura
Âmbito e conteúdo
Tipologia: Projeto arquitetônico
Descrição: Projeto arquitetônico do Hospital Carbone - Arquivo Histórico Municipal João Spadari Adami
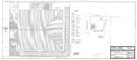
Prancha 1: Localização, paisagismo
Prancha 2c: Planta baixa sótão
Prancha 2d: Corte AA
Prancha: Corte BB
Prancha 4a: Fachada Norte
Prancha 4b: Fachada Oeste
Prancha 4c: Fachada Leste
Prancha 5a: Mobiliário pavimento térreo
Prancha 5b: Mobiliário 1º pavimento
Prancha: Mobiliário 2º pavimento
Prancha 6a: Detalhe divisória, vista e corte CC
Prancha 6b: Detalhe divisória, detalhe do encabeçado, corte DD, corte EE
Prancha 6c: Detalhe divisória, corte AA, corte BB
Pranchas: Detalhes ampliados das divisórias - 3 pranchas
Local: Avenida Júlio de Castilhos esquina Rua Humberto de Campos, nº 318 - Caxias do Sul - RS
Data aproximada: Novembro de 1987
Proprietário: Prefeitura Municipal de Caxias do Sul
Responsável: Berenice Arioli Heck - Arquiteta
Avaliação, seleção e eliminação
Incorporações
Sistema de arranjo
Área de condições de acesso e uso
Condições de acesso
Condiçoes de reprodução
Visando resguardar o interesse público e cumprir a legislação vigente sobre o direito autoral (Lei nº 9.610/98) e de acordo com a política nacional de arquivos públicos e privados (Lei nº 8.159/91), o usuário compromete-se a citar a autoria do documento reproduzido, bem como o nome da instituição que detém a guarda do original.
Em caso de citação de qualquer documento do acervo, o usuário compromete-se a realizar a indicação de fonte, autoria, local, data do documento e acervo.
É obrigatório manter a integridade da imagem do documento original. Estará sujeito à responsabilidade penal, civil e/ou administrativa aquele que utilizar os documentos reproduzidos de forma indevida.
É vedada a veiculação da imagem em sítios da internet e páginas de redes sociais.
Em caso de dúvida, entre em contato com a administração do Arquivo Histórico Municipal João Spadari Adami para solicitar esclarecimentos por meio do telefone: (54) 3901.1318 e do e-mail: arquivopublico@caxias.rs.gov.br
Idioma do material
Sistema de escrita do material
Notas ao idioma e script
Características físicas e requisitos técnicos
Suporte: Papel
Legibilidade: Boa
Conservação: Dobras
Instrumentos de descrição
Área de materiais associados
Existência e localização de originais
Existência e localização de cópias
Unidades de descrição relacionadas
Área de notas
Nota
Pranchas digitalizadas: 01, 4a, 4b, 4c, 5a, 5b, 6a, 6b, 6c
Nota
As pranchas nº 01, 4a, 4b, 4c são cópias xerográficas tamanho maior, as demais pranchas são cópias xerográficas em tamanho menor
As pranchas nº 5a, 5b, 6a, 6b e 6c estão em partes unidas com cola
